松山市 S様邸 リノベーション事例
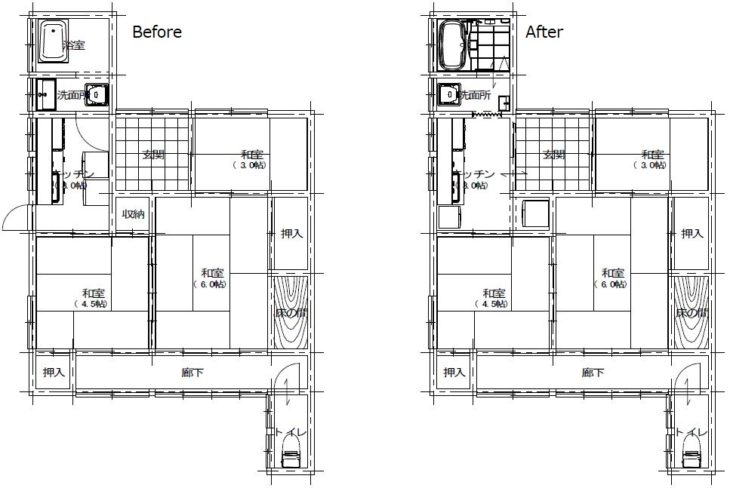
| お客様のご要望 | 水廻りの老朽化に加えて「脱衣場が狭く使いづらい」 「3帖程のキッチンに冷蔵庫が二つあるため狭い」などの 問題点がありました。 限られたスペースを有効活用できるようにしたいとの ご要望でした。 |
|---|
|
施工事例データ
| 住所 | 愛媛県松山市 |
|---|---|
| 施工箇所 | 水廻り |
| 施工内容 | キッチン、洗面所、浴室改装 |
| 費用 | 220万円 |
| 工期 | 2週間 |
| 築年数 | 50年 |
| 使用商材 | キッチン:TakaraStandard 洗面浴室:LIXIL |
| ご提案内容 |
脱衣場は、洗面台と洗濯機の配置を逆にした上で、別の場所にも 洗面台があるとの事だったので、通路幅確保のために洗面台は コンパクトな手洗い器に変更しました。 キッチンは、キッチンと隣接している和室の収納を冷蔵庫スペース に変更。キッチン室内に置く冷蔵庫を一つにする事ができました。 また、部屋の端にあった脱衣場への入口位置を、部屋の中心に変更 する事で、収納棚などを置くスペースを作る事ができました。 |
|---|
施工前はこちら
傷みが気になりだしたキッチン。
浴室入口前の洗濯機があり、出入りしにくい状態。
浴室と脱衣場の仕切りがなく湿気が気になります。
建築当初に作られたタイルの洗面台。
冬は寒く感じるタイルの浴室。
アドバンス・リフドによる施工中の様子
浴室解体時
洗面台解体時
施工が完了しました
ビフォー・アフター平面図
キッチン本体に加えて内装もリフレッシュ。
床の色とマッチしたキッチンが良い感じ。
浴室入口前はコンパクトな手洗い器を設置する事で通路幅を確保。
浴室と脱衣場に仕切りのドアが出来た事で、湿気が気にならなくなりました。
元々洗面台があった場所に洗濯機を配置して空間を有効活用。
爽やかなブルーのアクセントパネルが特徴的な浴室。










