松山市 O様邸 リノベーション事例
|
施工事例データ
| 住所 | 松山市朝日ヶ丘 |
|---|---|
| 施工箇所 | リビング、ダイニング、キッチン、浴室、洗面所、トイレ、内装、外壁 |
| 費用 | 2500万 |
| 工期 | 4か月 |
| 築年数 | 38年 |
| 使用商材 |
水廻り:LIXIL 建材:wood-one サッシ:YKKap |
施工前はこちら
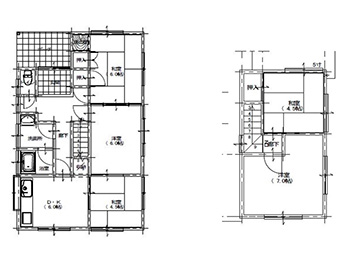
施工前の間取り図。
10年以上メンテナンスをしていない外壁。
物が溢れて片付かないリビング。
ただ広いだけで暗くて使い勝手の悪かったキッチン。
狭くて、使い勝手の悪かったキッチン。
狭く、物が溢れて片付かない洗面所。
寒く、お掃除が大変なタイルの浴室。
鏡が設置されていない浴室。
キレイだが掃除が大変なタイルのトイレ。
狭くて暗い和室。
昔ながらのランマ付きの玄関引戸。
アドバンス・リフドによる施工中の様子
間仕切り壁もできてきて徐々に部屋らしくなっていきます。
配線も配管も仕込みボードで壁紙の下地を作ります。
対面キッチンの壁を造作していきます。
内装工事が完了し、後は器具を付けるだけです。
システムバスの組み立て完了です。
組み立て完了して、配線と照明のチェックです。
内装が完了し、器具付け待ちです。
腰壁は、サニタリーパネルを貼り掃除が楽になります。
キッチンの組み立ても終わり完成までは養生します。
施工が完了しました
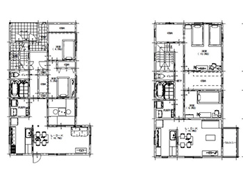
施工後の間取り図です。
1階の鳥観図です。
2階の鳥観図です。
シンプルな内装と対面キッチンを採用しました。
白を基調としたキッチンセット、シンプルなので圧迫感は感じません。
ホワイトの木目調のおしゃれなキッチンです。
清潔感がある白を基調とし、すっきりとした洗面所に変身しています。
黒い面材を選ぶことで締まって見えます。
清潔感がある白を基調とし、家事室を設け使い勝手がUP!
システムバスで温かく、お掃除が楽になりました。
バリアフリーとなり、清潔感がある明るいトイレとなりました。
おしゃれな壁紙で雰囲気を良くして、さらに節水便器を採用しています。
明るく気持ちのいい和室になりました。
白色でまとめた清潔感のある玄関は広く感じます。
ちょっとした小物が置けるワンポイントの棚です。
機能的で使い勝手のいいウォークインクローゼットです。
木目調の玄関ドアを採用し、おしゃれな玄関になりました。
外壁を貼り分けておしゃれな外観になりました!










